| Vidrio templado | ||
| LVT010 | Vidrio templado | |
|
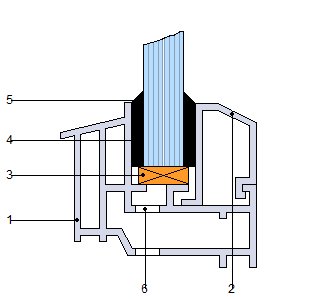
Vidrio de silicato sodocálcico templado, incoloro, de 5 mm de espesor, fijado sobre marcos con perfil continuo de neopreno. | ||
Precio |
|
Exportación |
|

CONCEPTO DE TRABAJO LVT010: VIDRIO TEMPLADO.
CARACTERÍSTICAS TÉCNICAS
Vidrio de silicato sodocálcico templado, incoloro, de 5 mm de espesor, fijado sobre marcos con perfil continuo de neopreno.
CRITERIO DE CUANTIFICACIÓN EN PROYECTO
Superficie a acristalar, según documentación gráfica de Proyecto, incluyendo en cada hoja vidriera las dimensiones del bastidor.
CONDICIONES PREVIAS QUE HAN DE CUMPLIRSE ANTES DE LA EJECUCIÓN DE LOS CONCEPTOS DE TRABAJO
DEL SOPORTE.
Se comprobará que las puertas y ventanas están completamente montadas y fijadas al elemento soporte. Se comprobará la ausencia de cualquier tipo de materia en los galces de los marcos.
PROCESO DE EJECUCIÓN
FASES DE EJECUCIÓN.
Colocación del perfil de neopreno en el perímetro de la hoja de vidrio. Colocación de la hoja de vidrio en el marco. Señalización de las hojas.
CONDICIONES DE TERMINACIÓN.
El conjunto será monolítico.
CRITERIO DE CUANTIFICACIÓN EN OBRA Y CONDICIONES DE ABONO
Se medirá la superficie realmente ejecutada según especificaciones de Proyecto, sumando, para cada una de las piezas, la superficie resultante de redondear por exceso cada una de sus aristas a múltiplos de 30 mm.